グループホームとは・・・
認知症の方が少人数(5人から9人)を単位とした共同住居の形態で、家庭的で落ち着いた雰囲気の中で生活を送っていただく場所です。
食事の支度や掃除、洗濯などをスタッフが利用者とともに共同で行い、認知症の方に対しては、過去に体験したことがあることなどで役割を持って頂き、認知症状の進行を穏やかにし、家庭介護の負担軽減を図ります。
認知症の方にとっては、大勢で集団生活を送ることは、時間的制約がどうしてもあり、生活そのものがケアに支配され、自己が失われていくような不安を感じます。
そうした不安を感じさせないように、認知症の方を生活の主としてとらえ、個人個人の方の生活を重視していきます。
当社のグループホームは3階建ての2階と3階の部分で、2ユニット(1ユニット:9人)の規模となっています。
長年、認知症のケアに携わってきたスタッフが、温かい家庭生活の延長線上として、笑顔で穏やかに暮らして頂けるよう、心をこめてケアいたします。
ご利用条件
要支援2・要介護度1以上の介護認定を受けている方。
認知症状があり、共同生活が可能な方
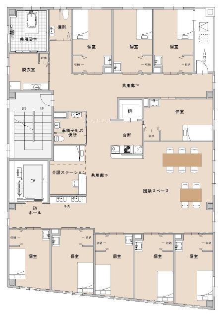
フロアマップ
1階 小規模多機能施設
- お問い合わせ先
-

営業時間:月~土曜 AM 9:00~PM 6:00












